作者:
發布時間:2022-03-15
瀏覽次數:
為推進公司安全生產標準建設,進一步提高皮帶機檢維修及日常巡檢安全。根據《物資采購招標管理辦法》要求,本著“公開、公平、公正、透明”的原則,擬對公司皮帶機防護網采用海螺陽光采購平臺進行公開招標采購,具體方案如下:
一、本次招標內容概況
1、招標物資名稱:防護網。
2、規格型號、計劃采購數量:
|
序號 |
物資名稱 |
型號規格 |
單位 |
預計數量 |
連接件數量 |
連接方式 |
備注 |
|
1 |
防護網 |
長1000*高500mm |
塊 |
494 |
499 |
A |
|
|
2 |
防護網 |
長1000*高700mm |
塊 |
36 |
38 |
A |
|
|
3 |
防護網 |
長1000*高800mm |
塊 |
1028 |
1048 |
A |
|
|
4 |
防護網 |
長1000*高850mm |
塊 |
78 |
78 |
A |
|
|
5 |
防護網 |
長1000*高900mm |
塊 |
2977 |
3007 |
A |
|
|
6 |
防護網 |
長1000*高1000mm |
塊 |
239 |
244 |
A |
|
|
7 |
防護網 |
長1000*高1100mm |
塊 |
433 |
433 |
A |
|
|
8 |
防護網 |
長1000*高1200mm |
塊 |
34 |
36 |
A |
|
|
9 |
防護網 |
長1000*高1300mm |
塊 |
1860 |
1860 |
A |
|
|
10 |
防護網 |
長1000*高1350mm |
塊 |
20 |
20 |
A |
|
|
11 |
防護網 |
長1000*高1400mm |
塊 |
147 |
147 |
A |
|
|
12 |
防護網 |
長1000*高1450mm |
塊 |
215 |
215 |
A |
|
|
13 |
防護網 |
長1000*高1500mm |
塊 |
42 |
42 |
A |
|
|
14 |
防護網 |
長1000*高1600mm |
塊 |
19 |
19 |
A |
|
|
15 |
防護網 |
長1000*高650mm |
塊 |
229 |
229 |
B |
|
|
16 |
防護網 |
長1000*高850mm |
塊 |
10 |
10 |
B |
|
|
17 |
防護網 |
長1000*高1100mm |
塊 |
10 |
10 |
B |
|
|
18 |
防護網 |
長1000*高1150mm |
塊 |
10 |
10 |
B |
|
|
19 |
防護網 |
長1000*高1300mm |
塊 |
10 |
10 |
B |
|
|
20 |
防護網 |
長1000*高1250mm |
塊 |
10 |
10 |
B |
|
|
21 |
防護網 |
長1000*高1800mm |
塊 |
10 |
10 |
B |
|
|
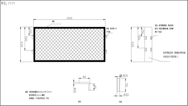
所有網孔統一規格:長節距22mm,短節距15mm,梗寬2mm。邊框角鐵:40*40*3mm;連接方式分A和B兩種,詳見圖紙。 |
|||||||
3、圖紙及相關尺寸如下:

A連接方式

B連接方式
3、質量要求:產品質量必須符合國家對該材料的相關標準要求。
4、技術要求:
(1)所有產品需均勻噴黃色防銹漆,并配套防護網組合鏈接部件。
(2)防護網焊接所用材料:角鐵規格為40*40*3;鋼板網采用梗厚2mm*梗寬2mm(國標);鋼板網網孔采用長節距22mm短節距15mm(內孔不大于18mm*12mm)。
(3)連接部件所用材料:10號槽鋼(國標),槽鋼長度與防護網寬度一致,連接口為及φ12圓鋼及DN20焊管。
5、招標地點:興業葵陽海螺水泥有限責任公司(廣西玉林市興業縣葵陽鎮工業園區)。
二、報價及結算方式
本次報價以(元/平方米)單價進行報價,按實際到貨數量換算平方數進行結算。
三、投標申請人須具備的條件
1、須提供營業執照、稅務登記證、組織機構代碼證(“三證合一”的只需提交營業執照)復印件;
2、投標人需為相關防護網產品生產廠家,注冊資本200萬元以上。
3、股權結構中含有同一股東關聯人、同一法人或其他關聯交易行為的投標單位,招標人只接受其中之一。
4、具備良好的資信狀況和財務狀況。
5、未列入省內區域D級供應商評定。
四、投標申請人須注意事項
1、凡有意參加投標者請于2022年3月23日8點前在陽光采購平臺(https://ygcg.conch.cn/webs/homepage/index.html)登記報名并上傳相關報名材料。招標人在報名截止時間會對報名投標人資質進行審查并對符合招標要求的投標人發放招標資格預審結果通知書。
2、招標人將對報名投標的投標申請人進行資質審查,并將資質審查結果告知各報名投標申請人。
3、本次招標標書費為100元,投標保證金20000元(貳萬元整),招標人不收取任何現金,未按規定繳納該費用,招標人將視為非響應性投標而予以拒絕,并取消投標資格。招標單位向中標單位發布《中標通知書》之日起5個工作日內,訂立書面合同。招標單位最遲在書面合同簽訂后5個工作日內向未中標的投標單位無息退還投標保證金,同時中標單位需繳納合同履約保證金(按照標的總金額3%比例收取,千位取整),履約保證金在合同過程履約正常,到期30日內無息返還。若中標后悔標、不能按時簽訂合同則投標保證金不予退還,同時,由此給招標人造成的損失,招標人有權追究悔標單位的全部責任。
五、招標人信息
招標人:興業葵陽海螺水泥有限責任公司
公司地址:玉林市興業縣葵陽鎮
聯系電話:固定電話:0775-3777292/3777873
手 機:18877538582/15677006600
聯 系 人:譚先生 李先生
收 款 人:興業葵陽海螺水泥有限責任公司
開 戶 行:中國農業銀行興業縣支行營業室
帳 號:20-416101040009585
五、為確保本次招標的公平、公正、公開,特設監督舉報電話,任何投標單位如對招評標過程及招標結果存在異議的,可致電投訴電話:聯系人 李先生 聯系方式:18977563777
2022年3月14日